Kitchen Design Measurement Guide

Learn how to measure your kitchen for great results.

step-by-step instructions

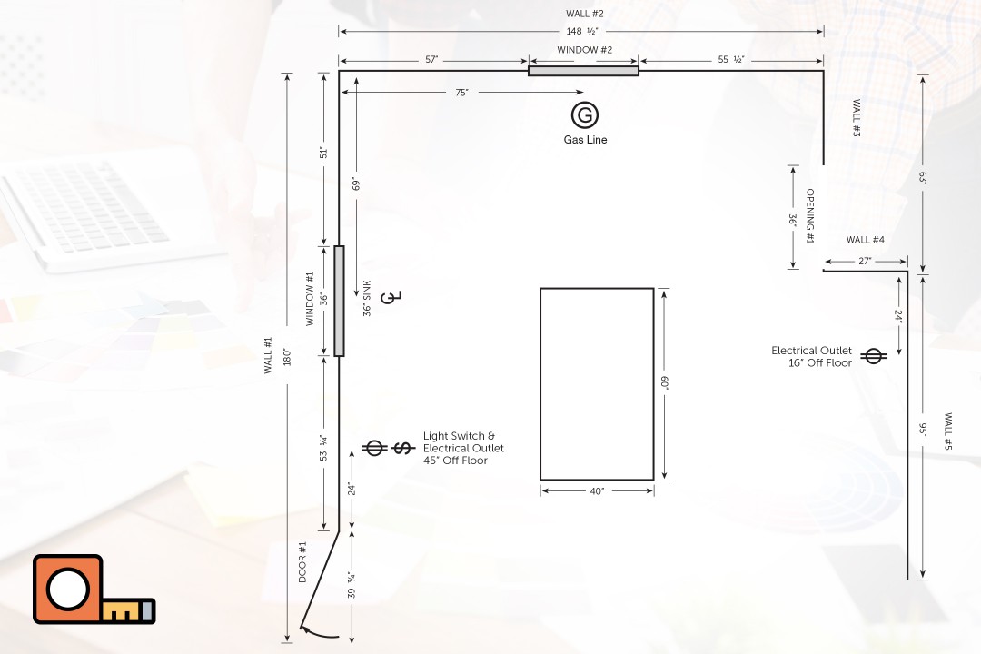
This guide will give you step-by-step instructions on how to measure and create a floor plan (aerial view) of your space. This information will provide our designers with everything they need to begin a design and price estimate of your kitchen project.

Download the Worksheet

Step 1

Measure Your Space


Starting in the left corner, measure each wall in the space that will contain cabinets and record those measurements (in inches) on the “Floor Plan Design Grid” located on the last page of this Measuring Guide.

Number each wall on the floor plan.

TIP: Be sure to measure the full length of each wall.

Step 2

Doors, Windows & Openings


Locate and measure doors, windows and room openings. Record and Number each door, window and room opening on the grid.

Record the corresponding dimensions in the measurement charts below.

TIP: When measuring doors, windows and room openings include the trim/casing in the dimensions.

Step 3

Obstacles


Locate and measure obstacles such as electrical outlets, vents, pipes, radiators, ect. Record any islands you already have or wish to add. Record and Number each obstacle on the grid.

TIP: If you are unsure of an obsacle, mark it down for our designers.

Step 4

Appliances


Common appliances typically come in standard sizes but it is important that we have the measurements. Luxury appliances such as cooktops, range hoods, warming drawers, and wine chillers have dimensions that can vary drastically.

TIP: Send us manufacturer specification sheets.

Step 5

Ceiling Height


Accurate ceiling height measurements are very important when determining which wall cabinets and crown moulding you want in your new kitchen. It is very important to take several measurements as the height can vary in different spots in the room. Many older homes have soffits above their wall cabinets that need to be taken into consideration when creating your design.

TIP: Measure height in 3 areas and record the shortest dimension.

Step 6

Photos


Now that you have completed the measuring guide, it is time to take some photos of your current space. Make sure to include pictures of each wall that will contain cabinets.

TIP: The more photos the better!

How To Submit the Worksheet

Once complete, scan and send to info@kitchensofcolorado.com or come to Our Showroom.

Download the Worksheet

Have a Question?

Send us an email, or call 303-292-9830, we are happy to help.

Please enter your full name.
Please enter a valid email address.
Please enter your phone number.
Please enter your City name.
Please enter a brief description about your inquiry.
DELIVERY & INSTALLATION: Professional delivery and installation is available for every product we sell. We would be happy to coordinate delivery and installation for you. Delivery and Installation not included. Additional accessories may be needed for installaton.
IMAGE DISCLAIMER: Images shown may depict a product feature or design without fully reflecting the product overall. Please refer to product details and specifications when making a final selection for purchase.
© 2026 Discount Cabinets & Appliances. All rights reserved.
This site is protected by reCAPTCHA and the Google Privacy Policy and Terms of Service apply.